Alte Druckerei
Umnutzung und Umbau eines Gewerbebaus
Hannover-Nordstadt
2003-2005, 2007
Dieses Objekt wurde von der Architektenkammer Niedersachsen für den Tag der Architektur 2006 ausgewählt.
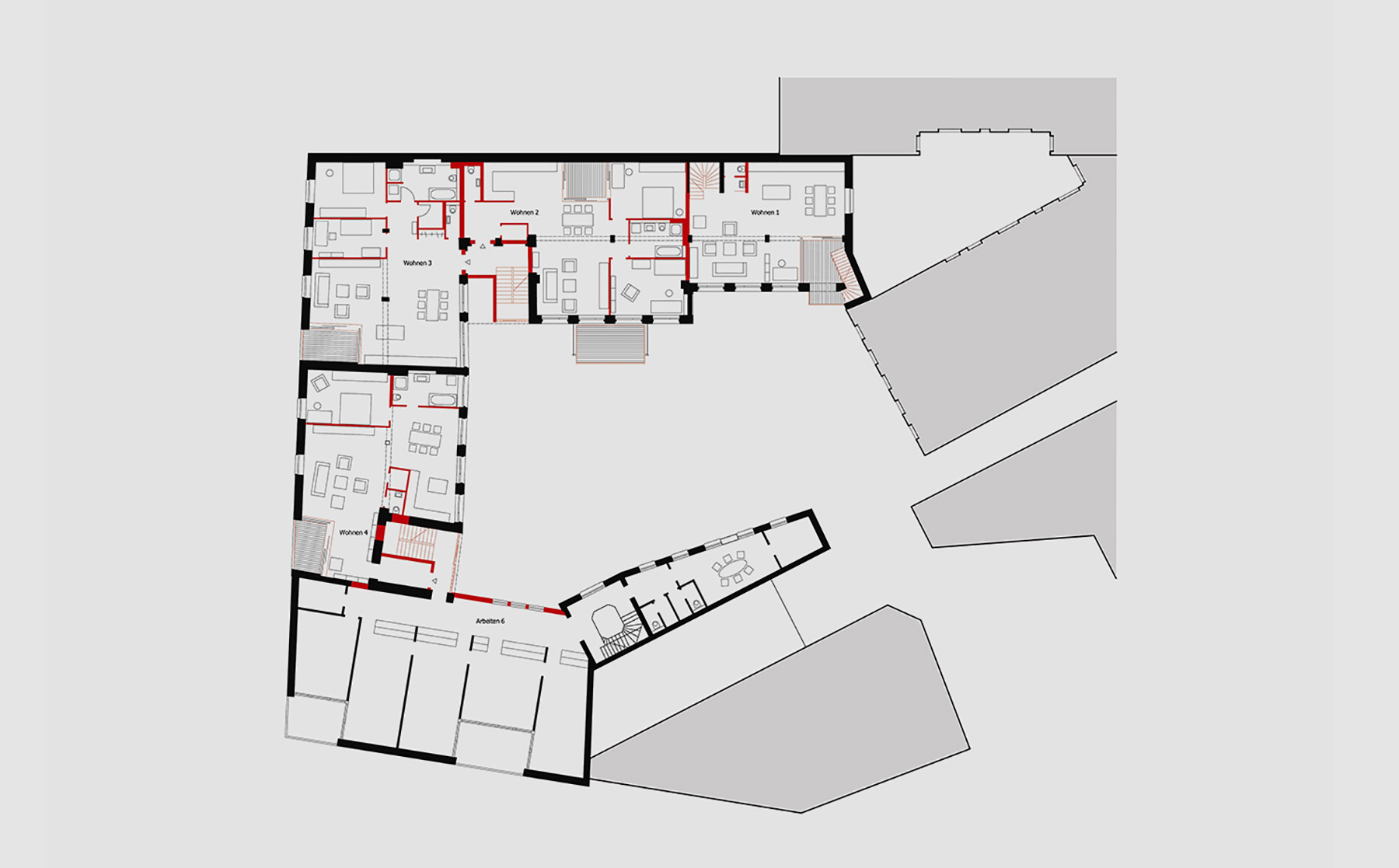
Das zwei- bis dreigeschossige Gebäude der ehemaligen Hahn-Druckerei umschließt mit seinen drei Flügeln einen Nordstädter Hinterhof in unmittelbarer Nachbarschaft zur Universität und zum Welfengarten.
Der 1920 errichtete, 1950 und zuletzt 1985 erweiterte Gewerbebau mit seinen hohen und großzügigen Geschossebenen wurde zu einem attraktiven Lofthof mit gemischter Nutzung weiter entwickelt. Wohnungen, Ateliers und Büroeinheiten unterschiedlicher Größe orientieren sich zum Hof als lebendigen Mittelpunkt, der über eine Durchfahrt mit der Straße Im Moore verbunden ist. Durch einen neu angelegten Durchgang an der gegenüber liegenden Westseite öffnet sich die "Alte Druckerei" auch zur Universität mit ihrem Hauptgebäude im Welfenschloss und zu den Herrenhäuser Gärten.
Die vorhandene Gebäudestruktur mit insgesamt 1.670 m² Haupt- und 570 m² Nebennutzfläche ermöglichte flexible Grundrisseinteilungen in zwölf Einheiten von 50 bis 450 m². Entstanden sind zwei Ateliers und drei Büros im Erd- und ersten Obergeschoss sowie sieben Loftwohnungen im 1. und 2. OG (zwischen 115 und 150 m²).
Alle Wohnungen bestehen aus einem durchgehenden Wohnbereich mit offener Küche und ein bis drei Schlafzimmern, sind zweiseitig belichtet und haben südseitig vor die Fassade gestellte Balkone oder westseitig eingeschnittene Loggien.
Die Qualität der schlichten Fassadengliederung wurde durch behutsame Eingriffe verstärkt, die vorhandene Substanz grundlegend saniert, Haustechnik und Energieverbrauch wurden zeitgemäß optimiert.
Von Ende März 2004 an waren wir mit unserem Büro im ehemaligen Verwaltungsgebäude der Druckerei ansässig; seit Fertigstellung des Umbaus im Herbst 2005 sind wir in einem der neuen Büros im Erdgeschoss zu finden.
In einem zweiten Bauabschnitt wurde im Jahr 2007 der weiterhin als Büro genutzte Südflügel der Alten Druckerei innen und außen saniert.
Als Material für die hinterlüftete Fassade kamen lackierte Sperrholztafeln zum Einsatz.
Beim Niedersächsischen Staatspreis für Architektur 2006 gelangte die Alte Druckerei mit neun anderen landesweit ausgewählten Objekten in die Engere Wahl.
Bauherr
privat
Wohnfläche
865 m²
Bürofläche
805 m²
Bruttobaukosten
1.450.000 € + 154.000 €
